Поворотный дровяной камин Slimfocus со сбалансированной тягой дымохода
- Описание
- Характеристики
- Отзывы
- Задать вопрос
- Видео (2)
-
Камин Slimfocus — это идеальное сочетание стиля, эффективности и функциональности. Он воплощает концепцию «стильного минимализма», занимая минимум места и привнося стильный акцент в дизайн любого интерьера.
Этот подвесной камин со сбалансированной тягой дымохода предназначен для обогрева помещений до 44 м2, что делает его отличным выбором для небольших и средних комнат. Slimfocus оснащен поворотным механизмом и закрытой дверцей с небольшим закругленным стеклом, что позволяет наслаждаться видом горящих дров с любой точки комнаты.
Этот современный камин в матово-черном оттенке идеально впишется в любой интерьер. Slimfocus — это не просто камин, это элемент декора, который придает вашему интерьеру особый шарм и уют.
Цена приведена только за очаг камина (место, где горит огонь). Труба, крепление и другие доп. опции в цену не входят.
Официальный Импортёр!За более подробной информацией обращайтесь к менеджерам по телефону
8 (800) 505 04 28
или по почте
-
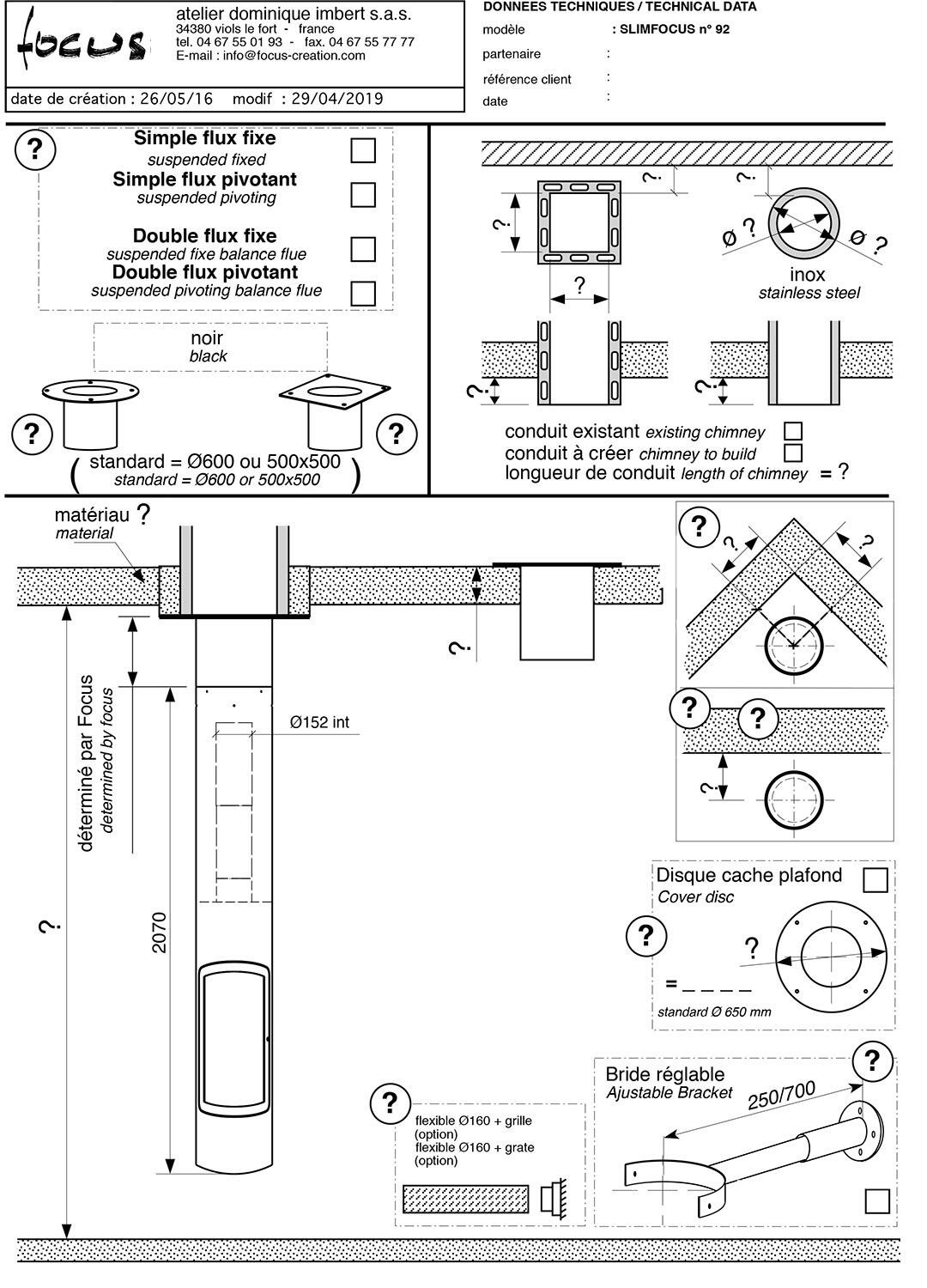
Высота, см 207 Ширина, см 32,5 Глубина, см 32,5 Мощность, кВт 4,5 Форма стекла Круглое Материал Металл Диаметр дымохода, мм 324 Вес, кг 120 Отапливаемая площадь, кв.м. 44 Цвет Чёрный матовый Расположение Островной Тип камина Подвесной -
Вы можете задать любой интересующий вас вопрос по товару или работе магазина.
Наши квалифицированные специалисты обязательно вам помогут. -















