Пристенный дровяной камин Grappus
- Описание
- Характеристики
- Отзывы
- Задать вопрос
- Видео (3)
-
Элегантный дизайнерский камин Grappus придает интерьеру особый стиль, акцентируя внимание на огне. Он был создан дизайнером Тибо Десомбром специально для французского бренда Focus.
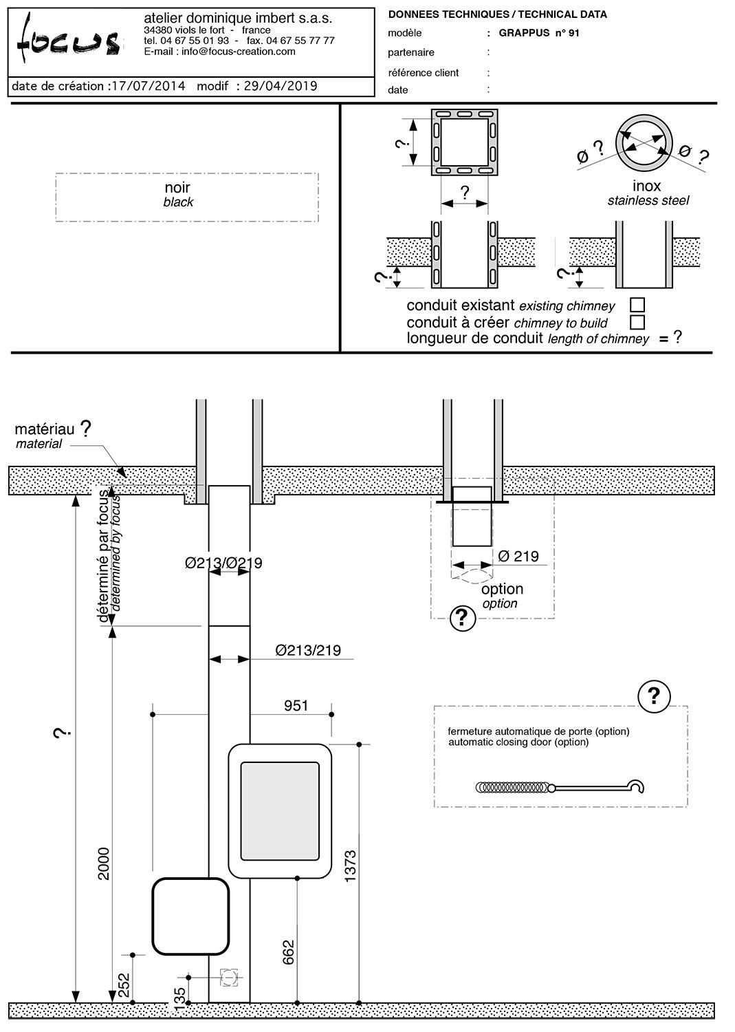
Grappus — это пристенный камин с прямым стеклом и дровником. Его номинальная тепловая мощность составляет от 3 до 8 кВт, что обеспечивает комфортный обогрев помещения. Выход CO составляет всего 0,08%, а пылевая эмиссия — 8 мг/м³, что делает камин экологически чистым и безопасным для использования в помещении.
В качестве топлива используются дрова, и вы можете наслаждаться пламенем через стекло камина. Grappus создан для тех, кто ценит не только тепло, но красоту и удобство. Он станет прекрасным дополнением к вашему интерьеру, придавая ему изысканности и уюта.
Цена приведена только за очаг камина (место, где горит огонь). Труба, крепление и другие доп. опции в цену не входят.
Официальный Импортёр!За более подробной информацией обращайтесь к менеджерам по телефону
8 (800) 505 04 28
или по почте
-
Высота, см 200 Ширина, см 95 Глубина, см 40 Мощность, кВт 3 - 8 Форма стекла Прямое Материал Сталь Диаметр дымохода, мм 213/219 Вес, кг 175 Цвет Чёрный матовый Тип камина Пристенный -
Вы можете задать любой интересующий вас вопрос по товару или работе магазина.
Наши квалифицированные специалисты обязательно вам помогут. -















